U gebruikt een verouderde internetbrowser.
We raden u aan om de meest recente internetbrowser te installeren voor de beste weergave van deze website.
Een internetbrowser die up to date is, staat ook garant voor veilig surfen.

Helaas, dit pand is verkocht

8730 Beernem

Omschrijving

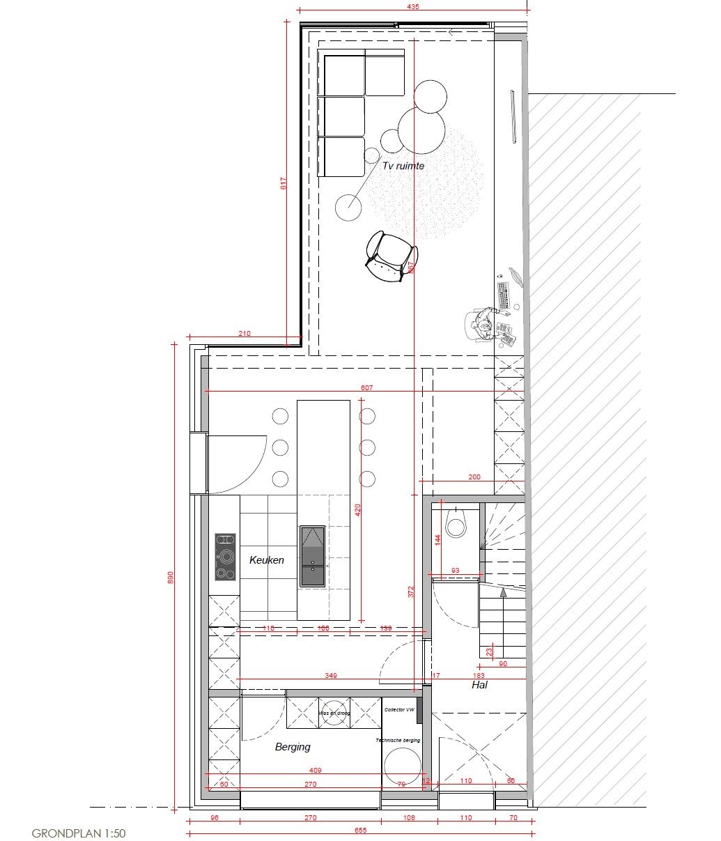
Totaal renovatie - Halfopen woning met 3 SLK

De renovatiewerken starten binnenkort en het einde van de werken/oplevering is voorzien tegen december 2020.

Er zal gewerkt worden met kwaliteitsvolle materialen in een hedendaagse stijl.
Met een berekend E-peil van 79 betreft het een energiezuinige woning.

De totaalrenovatie omvat: de gevels, de ramen, het dak voorzien van zonnepanelen, de vloeren, leidingen en centrale verwarming, de keuken, de badkamer, sanitaire toestellen en regenwaterput.

De tuin is zongericht. Via de achterliggende straat (Guido Gezellestraat) is er met de wagen toegang tot het perceel. Er is een vergunning aanwezig voor het plaatsen van een autostaanplaats/carport.

De woning is gelegen langs een rustige straat op wandelafstand van winkels en de jachthaven van Beernem (Kanaal Gent-Oostende). De bushaltes, het station en de E40 zijn op korte afstand bereikbaar, dus een ideale uitvalbasis voor woon-werkverkeer.

Verkoop onder Verkooprechten (registratierechten)


Niet gevonden wat u zocht? Schrijf u dan vrijblijvend in op onze nieuwsbrief en blijf op de hoogte van ons recentste aanbod.
Schrijf u in
Terug naar boven
Sluit menu Vanpoucke vastgoed